Chalupa U Lípy

Stav nemovitosti:
PRODÁNO
Adresa: Kunčice č. 105
Obec:
Staré Město
Zastavěná plocha:
131 m2
Pozemek: 5 493 m2
Cena:
PRODÁNO

Představuji Vám ke koupi roubenou chalupu nacházející se v Kunčicích u Starého Města. Chalupa byla postavena v původním selském stylu a je posazena do malebného a klidného prostředí na úpatí Jeseníků a Rychlebských hor. Majitelé chalupy spolu s rodinou se na stavbě podíleli z velké části vlastním přičiněním. Snažili se stavbu maximálně přizpůsobit starobylému selskému stylu a zároveň požadavkům moderního bydlení. Stavba chalupy byla zahájena v roce 2006 a dokončení interiérů proběhlo v roce 2010.

Chalupa o zastavěné ploše 131 m2 je zasazena v udržované zahradě, jež nabízí dokonalé soukromí a sportovní vyžití. Zahrada o celkové výměře 5.362 m2 má vlastní vjezd a nabízí až 8 soukromých parkovacích míst.

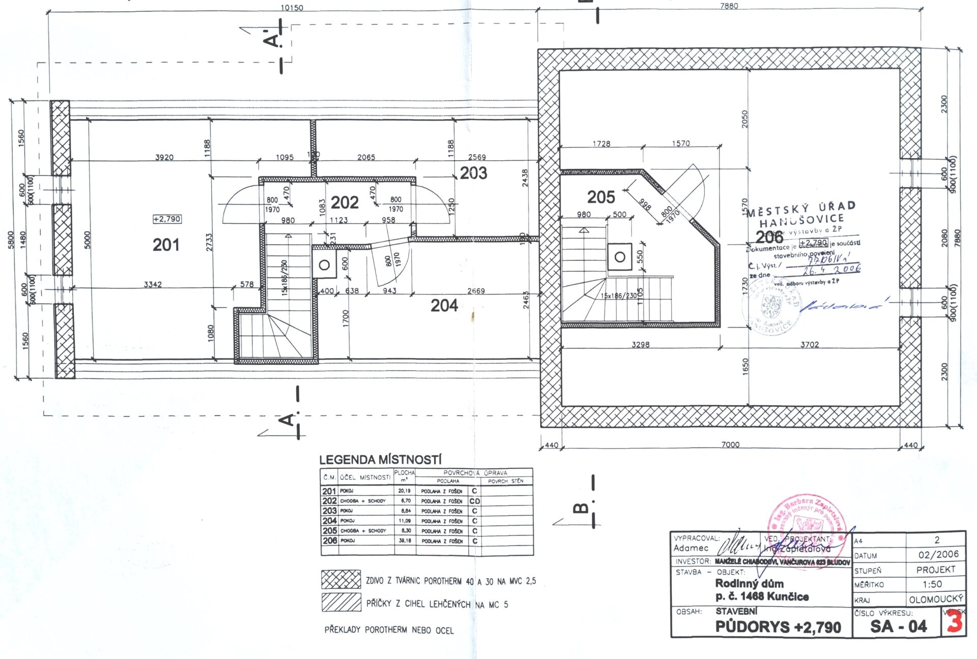
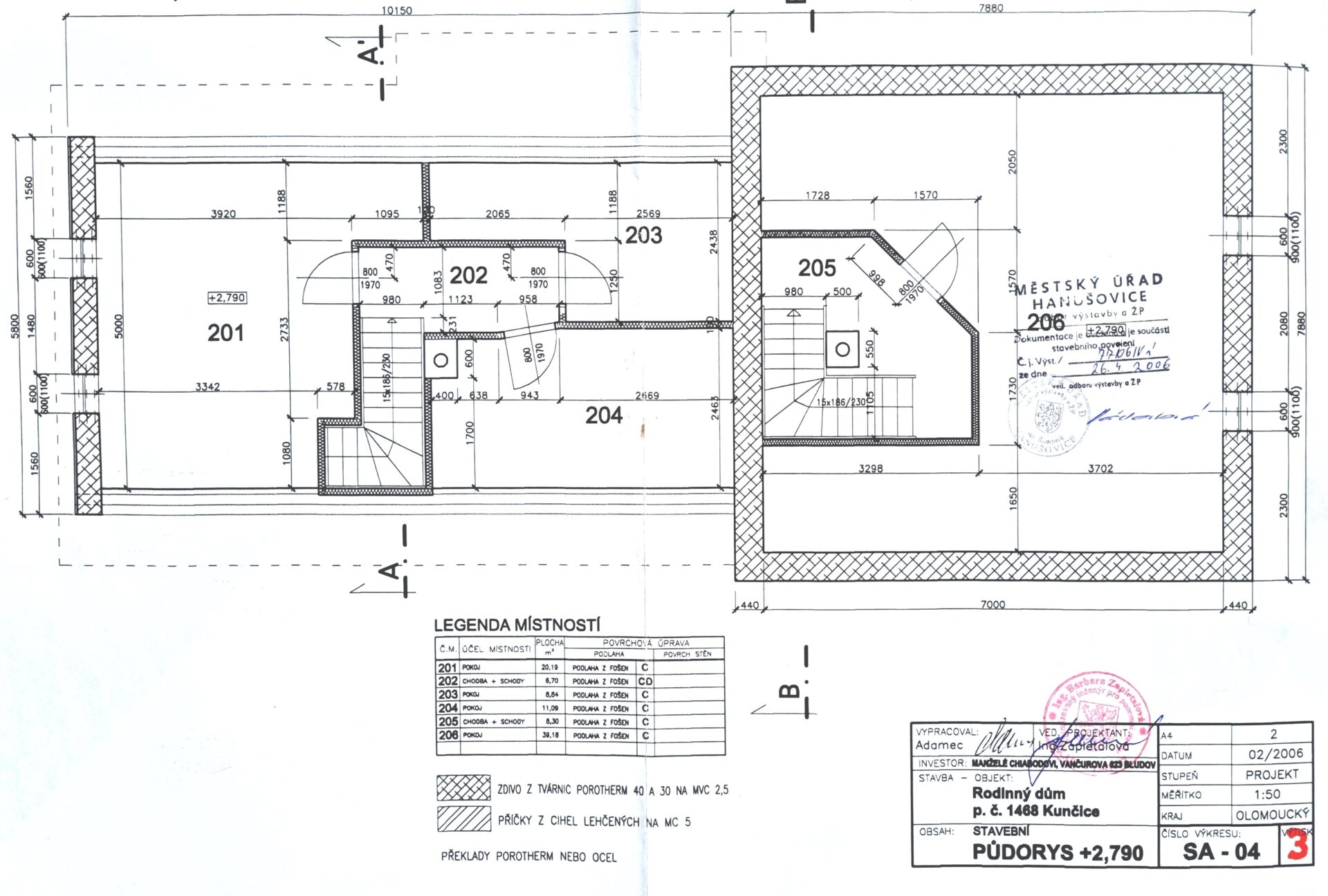
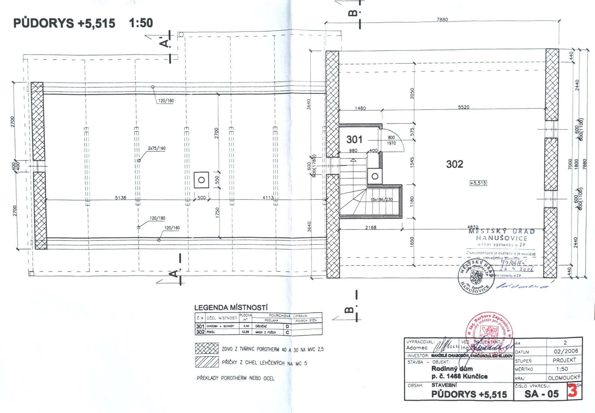
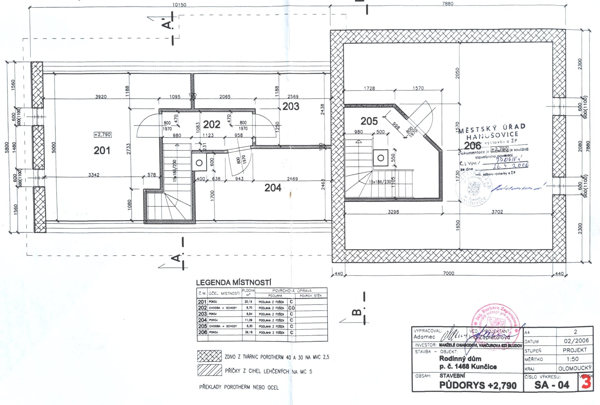
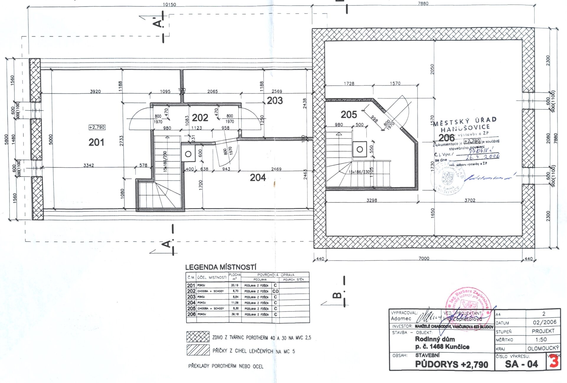
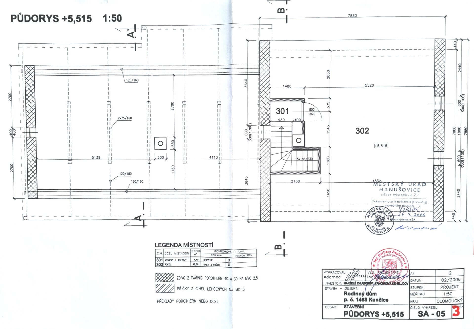
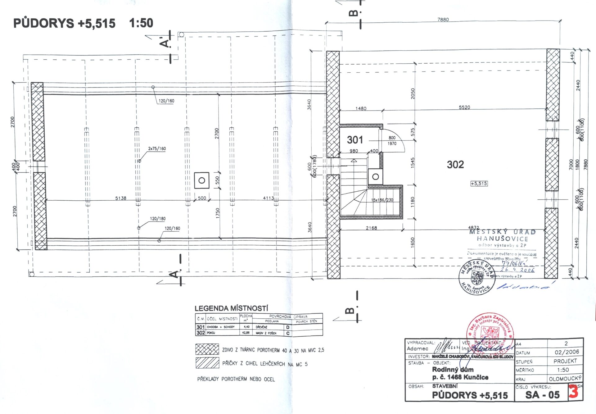
Jde o patrovou zděnou stavbu s prkennými obklady, která je rozdělena do dvou částí. Veškeré okenní výplně jsou dřevěné a byly vyrobeny na zakázku. Podlahy v přízemí chalupy jsou betonové obloženy dlažbou a podlahy v patře jsou dřevěné prkenné. Celá střecha je pokryta moderní krytinou CAPACCO. Chalupa je rozdělena na přední a zadní část. Obě části jsou spojeny chodbou, do které se vstupuje z verandy. Na chodbě je umístěna el. chladnička s mrazákem, vstup na samostatné WC a další vstup do koupelny se sprchovacím koutem, umyvadlem a odděleným WC. Z chodby se vstupuje vlevo do zadní části objektu a vpravo do přední části.

Chalupa U Lípy
Přední část chalupy:
Přízemí – obývací pokoj v selském stylu s kachlovými kamny a pecí k odpočinku plus kuchyňský a jídelní kout
Patro – tři samostatné pokoje, které jsou kompletně vybaveny a nabízí až devět lůžek na spaní  

Zadní část chalupy:
Přízemí – velký obývací pokoj s krbem a pecí na ležení, prostorná a plně vybavená kuchyňská linka, jídelní kout a také odpočinková část včetně sedací soupravy. Z této centrální části je vchod do koupelny se sprchou, umyvadlem a samostatným WC.
Patro – dva samostatné pokoje, které jsou kompletně vybaveny a nabízí až osm lůžek na spaní, na chodbičce je samostatné WC s umyvadlem a pračkou.
Podkroví – společenská místnost, herna pro děti i dospěláky včetně bohatého vybavení
Vytápění objektu je primárně řešeno kachlovými kamny a krbem, který je napojený na ústřední topení. V centrální místnosti s krbem je i podlahové topení. K dispozici je samozřejmě i elektrokotel s připojením na ústřední topení, který lze ovládat dálkově. Dodávku teplé vody zajištují dva bojlery o objemu 200 l kombinace (topení+ elektřina). Dům má vlastní vrtanou studnu s čistící technologií a odpady jsou napojeny do jímky s pravidelným vývozem.

Zahradní posezení u chalupy a sportovní vyžití je opravdu bohaté. K dispozici zde máme nadzemní bazén se solárním ohřevem, pergolu s posezením a grilovacím roštem, dále posezení s kamenným stolem, lavicí a židlemi, dětskou prolézačku s houpačkou, pískoviště, kuželky, trampolínu, dětskou skluzavku a malý nafukovací bazén. Nově je také možnost využít krásné upravené volejbalové hřiště náležící k chalupě.

Součástí naší nabídky je veškeré vnitřní i venkovní vybavení chalupy. Tudíž je vhodná nejen k privátnímu užívání a rodinné rekreaci, ale současně je možno chalupu i veřejně pronajímat. Chalupa má již řadu let vracející se klientelu, má své webové stránky včetně rezervačního systému a je rovněž registrována na portálech jako e-chalupy atd. Více informací o možnostech ubytování najdete zde.

A co lokalita samotná? Kunčice jsou typicky horskou vesnicí rozprostírající se v údolí Kunčického potoka, kdy první záznamy o ní jsou již z roku 1325.

V dnešní době jsou Kunčice, rozkládající se na úpatí masivu Kralického Sněžníku a Rychlebských hor, ideálním prostředím pro všestranný aktivní odpočinek v letním i zimním období. Jako turistické a lyžařské středisko nabízejí nespočet aktivit, relaxaci i odpočinek. Jsou zde ideální podmínky jak pro letní pěší turistiku, tak i pro zimní sporty. Skiareál Kunčice zaručuje skvělé podmínky pro lyžování i snowbording. Dále pak pro „běžkaře“ upravené běžecké trasy. Čeká vás 4,5 km perfektně upravených sjezdovek. Čtyřsedačková lanovka, tři vleky a pohodlné lyžování bez dlouhého čekání. Více informací naleznete na  www.skikuncice.cz

Původní stará chalupa, která nám byla vzorem pro naši stavbu.

Chalupa U Lípy
Podlahová plocha přízemí chalupy:
98,92 m2
Podlahová plocha patra chalupy:
94,30 m2
Podlahová plocha podkroví zadní části chalupy:
47,28 m2
Chalupa U Lípy
Chalupa U Lípy
Chalupa U Lípy
Chalupa U Lípy
Chalupa U Lípy
Chalupa U Lípy
Chalupa U Lípy
Chalupa U Lípy
Chalupa U Lípy
Chalupa U Lípy

DALŠÍ AKTIVITY V NEJBLIŽŠÍM OKOLÍ:

Kralický Sněžník
www.sneznik.cz

Staré Město pod Sněžníkem
www.staremesto.info

Horský resort
Dolní Morava (25 km)
www.dolnimorava.cz

Chata Paprsek
(skiareál) (8 km)
www.paprsek.net

Zámek Velké Losiny
(30 km)
www.jeseniky.net/zamek-velke-losiny

Ruční papírna a muzeum papíru Velké Losiny
(30 km)

 

Přečerpávací vodní elektrárna Dlouhé stráně
(30 km)
www.jeseniky.net/dlouhe-strane

Koupaliště

  • Ruda nad Moravou (25 km)
  • Šumperk (30 km)
  • Velké Losiny (termál) (30 km)

Neváhejte mě kontaktovat, rád Vám tuto nemovitost osobně představím

Cena za nemovitost: PRODÁNO

Máte zájem o nemovitost či o prohlídku? Napište mi!

Mám zájem o nemovitost - Chalupa u lípy

Reference

Byli jste spokojení s mou prací a přístupem? Dostali jste všechny informace? Proběhl obchod podle vašich představ?

Budu rád za vaše hodnocení Facebooku nebo na Googlu na Zdeněk Šupina - realitní makléř na Firmy.cz
Korektní a rychlé jednání, plná informovanost o prodávané nemovitosti, srozumitelné provedení celým procesem, empatický přístup, snaha přizpůsobit se klientům.

Tomáš Fajt

Pan Zdeněk Šupina je makléř, kterého bychom bezvýhradně doporučili nejenom našim přátelům a kolegům, ale naprosto každému, kdo by potřeboval služby realitní kanceláře. Služby realitní kanceláře RE/MAX jsou dokonalé. Pan Šupina je člověk, který je ochoten jakkoli pomoci, když klient se dostane do nějakého problému. My víme o čem mluvíme, protože i nás potkali nečekané problémy a starosti s prodejem bytu a následnou koupí nového. Pan Šupina je tu vždycky – připraven kdykoliv pomoci situaci okamžitě řešit, když se dostanete do problémů a vy víte, že pan Šupina vždycky pomůže problém vyřešit a cítíte se být v bezpečí. Pane Šupina, tolik, tolik Vám za všechno děkujeme.

Ivana Kranichová, Zdeněk Kranich

Pana Šupinu vřele doporučuji, spolupráci s ním hodnotím na výbornou. Jak při prodeji garáže, tak i při prodeji bytu byl s námi stále v kontaktu a vše dokonale vysvětlil. Pan Šupina je člověk na pravém místě.

Vřele doporučuji Ivana Káďová

S panem Šupinou byla jednoduše radost spolupracovat. Od rychlé domluvení prohlídky bytu, přes následnou telefonní i mailovou komunikaci, až po samotné předání klíčů a podepsání smlouvy. Pan Šupina je velmi ochotný člověk, problém nebyl ani s úpravou smlouvy. Rozhodně doporučuji a rád využiju služby i v budoucnu.

Moje zkušenost s realitní kanceláří ReMax v Šumperku předčila má očekávání. Od prvního jednání přes jednotlivé kroky až do finální fáze prodeje mé nemovitosti projevil pan Šupina vysokou míru profesionality, vstřícnosti, znalosti oboru i čistě lidského přístupu. Byla jsem vždy včas informována o všech změnách a podrobně mi byly vysvětleny všechny náležitosti. Byla jsem tak zbavena všech, i těch nejmenších starostí. Dovoluji si tvrdit, že spolupráce s panem Šupinou ze šumperského ReMaxu je sázka na jistotu.

Eva Kohutová

Byla jsem velice spokojená s přístupem pana Šupiny po celou dobu naší spolupráce hledání a koupi vhodného bytu pro mě. Díky jeho snaze se vše podařilo a jsem velice spokojená. Proto doporučuji jeho pomoc při prodeji, nebo koupi nemovitostí všem.

Marta Poštulková

Jsem velmi spokojen se službami pana Šupiny. Velmi rychle vše vyřizoval, dobře komunikoval. Vše mělo hladký průběh.

Vážím si jeho přístupu ke mě jako klientovi. Vřele doporučuji využít jeho služeb.

David Sláma

Služby byly velmi profesionální a vysoko nad rámec čistě pracovní spolupráce. Pan Šupina vysvětlil všechny fáze, které nás při prodeji nemovitosti čekaly, pomohl zařídit některé komplikované procesy, vždy si našel čas nejen při prodeji, ale i po něm. Poradil i další věci s prodejem spojené, které už by mohly jít mimo něj (převody energií, platba daně z nemovitosti v příštích letech, atd.). Velmi rád se na něj obrátím kdykoli budu ohledně nemovitostí cokoli potřebovat. Jeho služby mohu jen doporučit i ve srovnání s dalšími realitními agenty, se kterými jsem se do té doby setkal.

Zdeněk Papoušek

Neuvěřitelný odborník, zařídí úplně vše. Navíc příjemný člověk. Vřele doporučuji!

Pavel Kubelka

Vysoká profesionalita, korektnost, spolehlivost i osobní přístup zaručily hladký a bezproblémový průběh koupě nemovitosti. Byli jsme velmi spokojeni.

Dr. Alena Flamee

Top realitní makléř, velká spokojenost, o vše se postará a zařídí vše okolo vaší nemovitosti. Velice profesionální přistup a ochota. Příjemné vystupování.

Marián Veselý

S prací pana Zdeňka Šupiny jsme byli velmi spokojení. Vstřícnost, ochota, komunikace, pohotovost, rychlost a velmi milý lidský přístup, s tím se už tak často nesetkáváme. Ještě jednou moc děkujeme za pomoc, rady a vše, co jste pro nás udělal. Moc si toho vážíme a moc to pro nás bylo milým překvapením a urychlilo to celý proces prodeje. Doporučujeme pana Zdeňka Šupinu všem ostatním klientům, budete velmi spokojeni. Ještě jednou děkujeme.

Jiřina Ryšavá

„S panem Šupinou byla příjemná spolupráce, jeho přístup – jak po profesní, tak i osobní stránce byl perfektní. Jelikož jsme neměli s nákupem nemovitosti žádné zkušenosti, vše nám vždy ochotně vysvětlil a mohli jsme se na něj kdykoliv obrátit. Vřele doporučujeme.“

Miška Tesařová

„Pan Šupina je velice schopný makléř a myslím, že ohodnocení 5 hvězdiček je málo. Mohu jen a jen doporučit. Opravdu člověk na svém místě. Prodal nám už několik nemovitostí a v případě dalšího prodeje budeme řešit pouze a jen s ním. Vřele všem doporučuji!!! Děkujeme“

Karel Warenich

„Škoda, že se nedají dát známky jako ve škole, pouhé DOPORUČUJI je v případě pana Šupiny dost málo. Kdybychom byli ve škole, má to za 1* Je to profesionál, který je ale navíc empatický (když vidí emoce na pochodu, vytasí panáka a svým klientům dokáže poradit i po té osobní stránce. Není to jen o tom něco prodat/koupit, jde i o další servis a rady kolem (nehledě na to, že jsme z Brna ani jednou nemuseli přijet zbytečně, postaral se i o záležitosti na byťáku a ušetřil nám cestování). Cením si i toho, že zájemce o můj byt selektoval a já už se tak potkala jen s tím solidním (který byl zároveň i kupcem). Pokud hledáte slušného, zkušeného a milého “realiťáka”, pak jste na správné adrese.“

Monika Babincová

„S panem Šupinou jsme byli maximálně spokojeni. Dokázal poradit, předal nám veškeré informace a neměl problém vyřešit vše, co jsme potřebovali. Oceňujeme profesionalitu, výborný přehled a znalosti. Samozřejmě nechyběl ani osobní přístup.“

Denisa Švarcová

„Děkuji moc za super spolupráci panu Šupinovi. Velice příjemné a přátelské vystupování, o jakékoliv nové skutečnosti nás ihned informoval a vysvětlil další postup tak, abychom vše pochopili. Co bylo řečeno, bylo i dodrženo, celý prodej proběhl k naší maximální spokojenosti a pro nás bez jakékoliv starosti. Ještě jednou moc děkuji a všem mohu jen doporučit.“

Blanka Šebelová

„Vřele doporučuji.Pan Šupina je skvělý makléř,vše vysvětlí do hloubky a do detailu.Velice lidský a přátelský přístup.“

Lada Crhová

„Opravdový “ PAN “ realitní makléř, který ví co dělá a dělá to velice dobře a profesionálně. Všem 100% doporučuji!“

„Pana Šupinu bych určitě doporučila všem. Je ochotný a okamžitě řeší každou situaci“

„Profesionální obchodník na svém místě. Skvělá komunikace, ochota a rychlý obchod s lidským přístupem“

Martin Pich

„Spolupráce s panem Šupinou byla skvělá, určitě doporučujeme. Profesionál na svém místě a navíc s lidským přístupem. Vysvětlí, poradí i nad rámec „pouhého“ prodeje nemovitosti.“

Blanka Dvorakova

„Pan Šupina opravdu spolehlivý makléř!!! Do detailu vysvětlí každý problém a kdykoliv řeší. Všem vřele doporučuji!!!“

Dana Kocourková

„Věcný a korektní přístup, efektivní tah na branku, rychlá reakce na průběh řešení – variantní řešení! Sympatický/empatický a přátelský způsob jednání se zákazníkem ústící v příjemný pocit zákazníka z veškerého jednání.“

„S panem Zdeňkem Šupinou byla příjemná spolupráce, jeho přístup – jak po profesní, ale i osobní stránce byl perfektní. Všem prodávajícím i kupujícím na trhu s nemovitostmi jeho služby vřele doporučuji.“

Kamil Krejčí

„Vstřícné a profesionální jednání a přístup“

„S panem Šupinou byla příjemná spolupráce, jeho přístup – jak po profesní, tak i osobní stránce byl perfektní. Jelikož jsme neměli s nákupem nemovitosti žádné zkušenosti, vše nám vždy ochotně vysvětlil a mohli jsme se na něj kdykoliv obrátit. Vřele doporučujeme.“

Markéta Tesařová

„Výborná kvalita služeb; 100% spolehlivost; vysoce profesionální přístup; rychlost v práci; přímá a jasná komunikace; příjemné jednání; vše vždy důkladně projednáno, zařízeno. Maximální spokojenost s poskytovanými službami. Vstřícný, zkušený a spolehlivý makléř. Určitě ho doporučím známým. Pan Šupina je muž na správném místě. Povedl se nám realizovat obtížný obchod a vše proběhlo naprosto perfektně i přes jisté překážky. Oceňuji okamžitou odezvu, férové jednání, vše vysvětlil do nejmenšího detailu. Vřele doporučuji.“

Zdeněk Gros

„Pan Šupina je naprostá špička ve svém oboru!!! Vždy profesionální přístup a hlavně velice seriozní jednání. To už se dnes jen tak nevidí. Jestliže obchod s reality, tak jedině s REMAX a panem Šupinou.“

Petr Kodeš

„Vstřícnost, zásadovost, kompletní servis a rychlý průběh celého obchodu od oslovení makléře až po samotný prodej naší nemovitosti.“

Dostálovi

„Spolupráce s panem Šupinou byla velice příjemná, je maximálně vstřícný a spolehlivý. Můžu jen doporučit.“

Helena Vondrková

„Dobrý den pane Šupino. Za Vaši službu můžu jen poděkovat. Zprostředkování, komunikace i vlastní prodej se povedl naprosto korektně. Dodržel jste smluvené termíny, nedošlo na žádné slibování. Odvedl jste naprosto profesionální práci bez zbytečných obstrukcí. V případě další potřeby, rád využiji Vaše služby“

Tomáš Mezera

„Pro pana Šupinu jednoznačně 5 hvězdiček za nadstandardní přístup ke komplikovanému prodeji mé nemovitosti, za férové a operativní jednání…..a jedna hvězda navíc za lidskost a mé osobní sympatie . Hledáte-li makléře, pak toto je každopádně ta nejsprávnější volba.“

Daniel Černoch