Chata Suchá Rudná
Rád bych Vám nabídl ke koupi tuto zajímavou chatu, která se nachází v obci Světlá Hora, a to přesněji v její části Suchá Rudná, jenž je součástí krásných a drsných Jeseníků. Chata není podsklepena a byla postavena jako nová v roce 1988 na původních základech německé chalupy. Je zasazena v udržované zahradě o výměře 2.829 m2, jež nabízí dokonalé soukromí a sportovní vyžití. Chata je aktuálně provozována jako penzion se třemi shodnými a na sobě naprosto nezávislými patrovými apartmány. Kapacita jednotlivého apartmánu jsou 4 lůžka + dvě přistýlky. Celková kapacita chaty je 12 lůžek + 6 přistýlek.
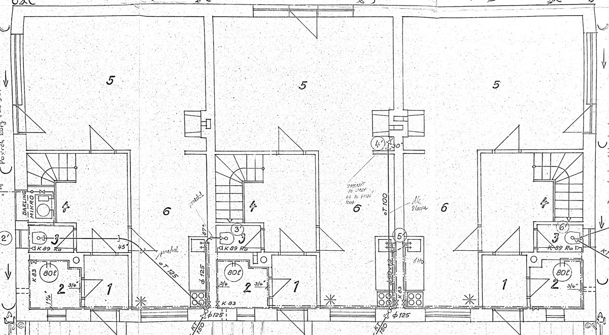
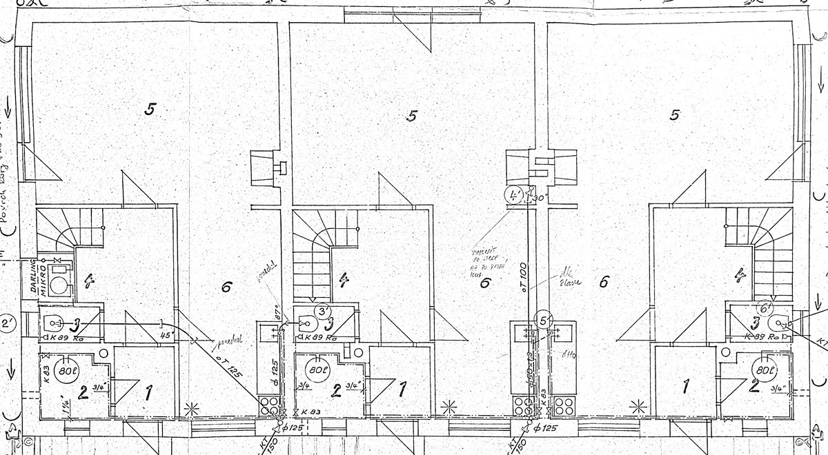
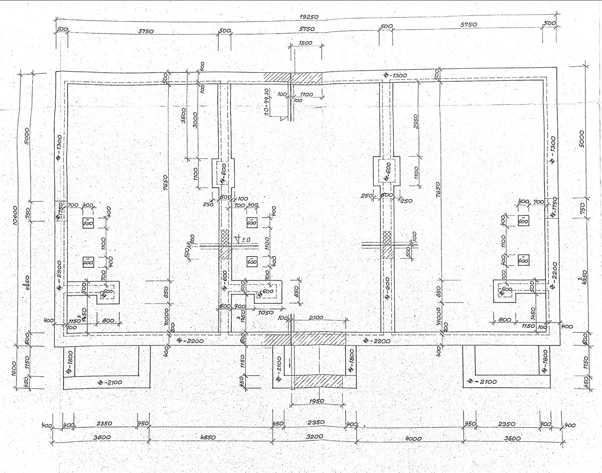
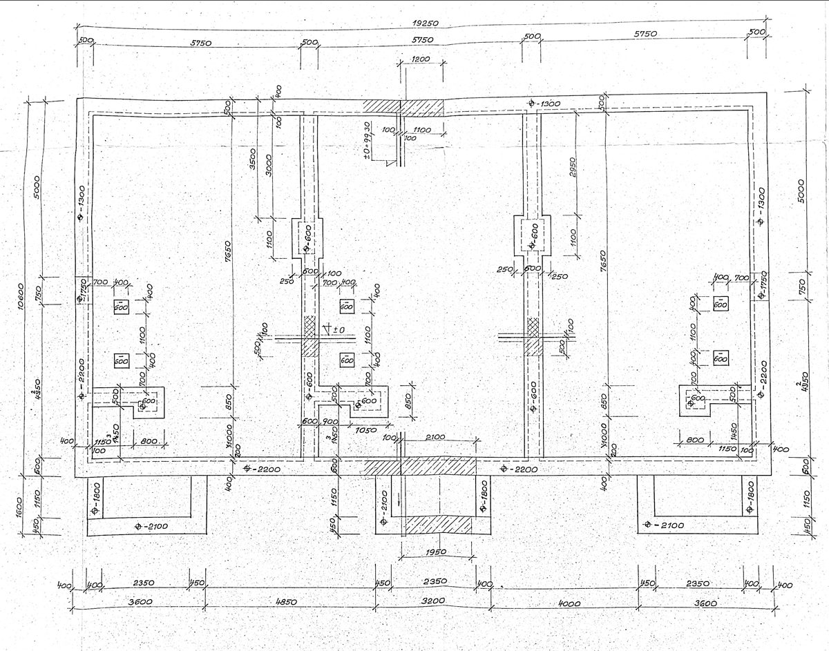
Hlavním stavebním prvkem chaty je cihla a pórobeton. Půdorys stavby má rozměr 19,25 x 10,60 m. Okna jsou dřevěná a doplněna o předokenní žaluzie. V roce 2003 proběhla rozsáhlá rekonstrukce a chata byla zateplena polystyrenem o tloušťce 7 cm a stropy byly zaizolovány vatou. Každý apartmán má vlastní vytápění akumulačními kamny a k dispozici je také krb. Ohřev vody je zajištěn dvěma bojlery pro jeden apartmán. Pro každý apartmán je připraven samostatný komín a je zde možnost přejít na zcela jiný druh vytápění. V roce 2010 byla pro celou chatu vybudována nová biologická čistička odpadních vod. Vlastní vodovodní vrt hluboký 27 m ve skalním podloží, který produkuje horskou vodu majitelé pořídili včetně kvalitní technologie v roce 2021. Kvalitní voda a čistý vzduch jsou nesmírnou předností této oblasti, která se vyznačuje nejčistším vzduchem ve III a IV zóně CHKO Jeseníky.
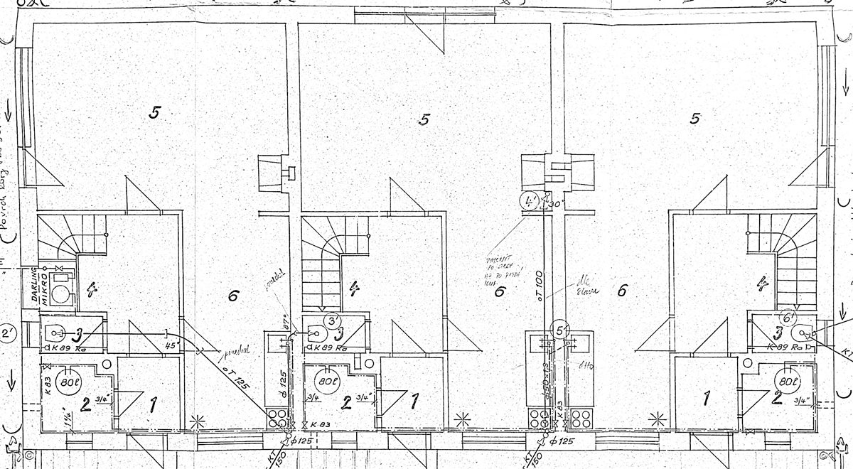
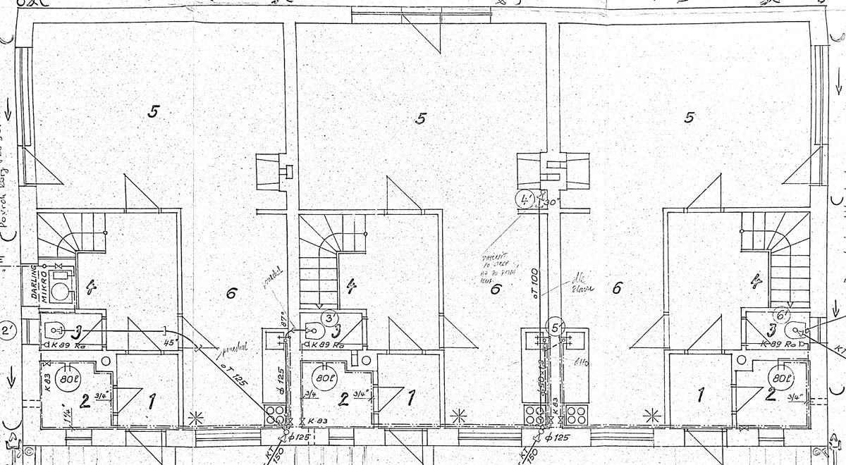
Celkem jsou k dispozici tři na sobě naprosto nezávislé patrové apartmány s vlastními vchody a terasami.
Složení apartmánu:
Přízemí /56 m2/ – zádveří, technická místnost, WC, schodiště, předsíň, obývací pokoj se vstupem na vlastní terasu a rozkládací pohovkou a plně vybavená kuchyně
Podkroví – sklad, předsíň, samostatné WC, prostorná koupelna a čtyřlůžková ložnice s přímým vstupem na balkon
Zahradní posezení u chaty a sportovní vyžití pro všechny apartmány je opravdu bohaté. Chata je obklopena velikou zahradou, která postupně přechází v les. Zahrada umožňuje jak sportovní vyžití (víceúčelové hřiště, trampolína, dětské zázemí, houpačky, venkovní bazén vyhřívaný tepelným čerpadlem) tak i odpočinek nebo posezení u krbu s udírnou.
Součástí naší nabídky je veškeré vnitřní i venkovní vybavení chaty. Vzhledem ke třem samostatným apartmánům je případné využití chaty opravdu bohaté a je možno jej libovolně kombinovat. Je vhodná nejen k privátnímu užívání a rodinné rekreaci, ale současně je možno chalupu i veřejně pronajímat, a to buď částečně nebo jako celek.
Chata-penzion má již řadu let vracející se klientelu, má své webové stránky včetně rezervačního systému a je rovněž registrována na turistických portálech. Letní i zimní sezona bývá pravidelně vyprodaná. Více informací o možnostech ubytování najdete zde.
Lokalita, kde se chata nachází je vzdálena pouze šest kilometrů od rozcestí a parkoviště Hvězda, odkud je to dalších 6 km na vrchol Pradědu. Karlova Studánka, jejíž okolí se vyznačuje nejčistším vzduchem ve střední Evropě umožňuje návštěvu letních lázní s bazénem se nachází pouze 7 km od chaty. Krajina je protkaná cyklotrasami, stezkami pro turisty, ale najdete tu i místa, kde na svých toulkách nepotkáte živou duši. Na své si přijdou v létě zejména cyklisté, kterým začíná značená cyklotrasa hned vedle chaty. Samotná poloha chaty v nadmořské výšce 660 m.n.m. zajišťuje dobré sněhové podmínky pro zimní sporty. V okolí je několik desítek kilometrů upravovaných tréninkových běžkařských tratí, které jsou strojově upravovány. Nejbližší sjezdovka je v lyžařském areálu Annaberg vzdáleném autem tři kilometry. V přilehlém okolí jsou také známá lyžařská střediska jako je Ovčárna-Praděd, či skvěle technicky připravené středisko Malá Morávka-Karlov.
V této krásné krajině si své záliby najdou opravdu všichni a pokud byste chtěli ochutnat výborné regionální sýry a mléčné výrobky z kravského a kozího mléka, tak se můžete zastavit na Eko farmě U Stromovouse, která je vzdálena pouze 800 m.
Rád bych Vás tímto pozval na osobní prohlídku této zajímavé nemovitosti.
DALŠÍ AKTIVITY V NEJBLIŽŠÍM OKOLÍ:
SKI AREÁL ANNABERG
Turistika – K nezapomenutelným zážitkům patří výšlap po naučné stezce Bílé Opavy, výstup na nejvyšší horu Praděd. Nejkrásnější a nejpoutavější stezkou je naučná stezka Velkou kotlinou. Dalším tipem k výletu může být výstup na Petrovy kameny na hlavním hřbetu Hrubého Jeseníku. Se skalami na Petrových kamenech je spjata řada pověstí. Při čarodějnických procesech v 17. století byly kameny označovány jako místo čarodějnických sabatů, údajných schůzek čarodějnic s ďáblem.
Cykloturistika – Jeseníky jsou jednou z významných moravských cyklistických oblastí. Nabízejí horské terény, po běžeckých trasách lze vystoupat i na nejvyšší horu Moravy do téměř patnácti set metrů nad mořem. Odměnou jsou úžasné panoramatické výhledy.
Samotná chata se nachází na rozcestníku dvou cyklotras
Výlety – K zajímavým výletům může patřit i návštěva lázeňského města Karlova Studánka, kde se dnes léčí nemoci dýchacích cest a pacienti mohou využít sedmi pramenů železité kyselky. Dalším tipem krásně stráveného dne může být návštěva zámku v Bruntále, města Velké Losiny s termálním koupalištěm.
Jízda na koních – Milovníci koní a jízdy na koni mohou navštívit Stáj Amír v Rudné pod Pradědem (4km),kde si mohou domluvit jízdu na koni.
Neváhejte mě kontaktovat, rád Vám tuto nemovitost osobně představím
Cena za nemovitost: 9.990.000,- Kč


